Skip to content
Cucina moderna spazi ottimizzati
Cucina moderna spazi ottimizzati

Cucina moderna spazi ottimizzati

Cucina moderna spazi ottimizzati

Cucina moderna spazi ottimizzati

Cucina moderna spazi ottimizzati

Cucina moderna spazi ottimizzati

Cucina moderna spazi ottimizzati

Cucina moderna spazi ottimizzati

Cucina moderna spazi ottimizzati

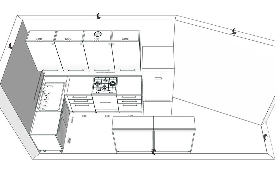
Cucina moderna spazi ottimizzati - il progetto

Cucina moderna spazi ottimizzati

Cucina moderna spazi ottimizzati - com'era prima

Cucina moderna spazi ottimizzatiCucina moderna spazi ottimizzatiCucina moderna spazi ottimizzatiCucina moderna spazi ottimizzatiCucina moderna spazi ottimizzatiCucina moderna spazi ottimizzati

Cucina moderna spazi ottimizzati

In questa realizzazione possiamo mostrarvi come gli spazi ridotti possono essere sfruttati al meglio e soprattutto secondo le necessità del cliente.

Il cliente infatti ci ha contattato per progettare una nuova cucina moderna, cercando di acquisire spazio rispetto a quella vecchia: abbiamo quindi eliminato la colonna del forno che prendeva troppo posto, ed anche un muretto che fungeva da divisorio.

La particolarità di questa cucina è il banco con basi alto 96cm, profondo 35cm e lungo 2,25 metri diventando quindi un bella dispensa capiente. Altra particolarità il frigo grande da 70cm.

Infine facciamo notare alcuni accorgimenti professionali come le maniglie abbinate al colore dello zoccolo e della alzatina, la cappa integrata a scomparsa, il piano cottura con fuochi disposti a rombo (più spazio per le pentole), doppio rubinetto per acqua potabile e normale e la lavastoviglie a sinistra del lavello.

Progetta con noi la tua cucina, troveremo la soluzione più adatta a te!

Vuoi saperne di più? Lascia i tuoi dati e ti ricontatteremo.

Torna su